Multifunktional, synergetisch und zentral: Der Neubau des Stadtteilhauses am Hamannplatz vereint viele, stadtteilorientierte Angebote unter einem Dach – mitten im Herzen von Coerde.
Hamannplatz Nr. 36–40: Wo sich einst die Gebäude des Bürgerbüros, der Stadtteilbücherei und der Kinderärztin befanden, steht man aktuell vor einem graublauen Bauzaun. Denn seit dem Frühsommer 2025 passiert hier viel: Von Tag zu Tag wächst der Neubau des multifunktionalen Stadtteilhauses weiter und ist nun auch weit über den Bauzaun hinweg deutlich zu sehen.
Der Neubau des Hauses schafft in zentraler, gut erreichbarer Lage eine niedrigschwellige Anlaufstelle für Bildungs-, Begegnungs-, Beratungs- und Gesundheitsangebote für alle Bewohnerinnen und Bewohner von Coerde. Dabei bündelt die neue Einrichtung die bislang im Stadtteil verstreuten Angebote unter einem Dach. Die dadurch entstehende räumliche Nähe der Angebote leistet zudem einen wichtigen Beitrag zur Weiterentwicklung der Kooperationsmöglichkeiten der Akteure im Stadtteil.
Das Angebots- und Nutzungskonzept des Hauses ist dabei auf die Lebenszusammenhänge und Problemlagen der Coerder Bevölkerung abgestimmt und dient somit als Anlaufstelle in allen Lebenslagen.
© bbp : architekten
Die Bauherrin des Projektes ist die Westfälische Bauindustrie GmbH (WBI), welche das neue Gebäude für rund 16 Millionen Euro im Auftrag der Stadt Münster errichtet.
Finanzielle Unterstützung erhält das Projekt aus dem Bund-Länderprogramm „Sozialer Zusammenhalt“ und dem EU-Regionalförderprogramm „Wohnviertel im Wandel“ (EFRE/JTF) mit Fördermitteln in Höhe von rund 12,2 Millionen Euro.
Der Neubau wird nach Plänen von bbp-Architekten bda aus Kiel, Berlin und Münster umgesetzt, die mit ihrem Entwurf den Architekturwettbewerb im Jahr 2022 gewonnen haben.
© MWIKE
Deutlich wurde in den 2000er-Jahren, dass das bisherige Stadtteilzentrum erhebliche Mängel hinsichtlich der Versorgung für den täglichen Bedarf aufwies und gleichzeitig die Aufenthaltsqualität mehr und mehr zurückging.
Mit der Änderung des Bebauungsplans für den Bereich Hamannplatz wurden neue Entwicklungsmöglichkeiten für das Stadtteilzentrum geschaffen. Edeka und Aldi konnten ihre bisherigen Verkaufsflächen in modernen Neubauten erweitern, und auch der Standort am Hamannplatz Nr. 36–40 erhielt die Option einer deutlichen baulichen Erweiterung, um mehr stadtteilrelevante Angebote anzusiedeln.
Im parallel ablaufenden InSEK-Prozess wurde ebenfalls deutlich, dass eine Vielzahl von Akteuren im Stadtteil moderne Räume gebündelt an einem Standort bevorzugen, anstatt dezentral über den Stadtteil verteilt zu sein. Dieser Wunsch konnte jedoch nicht in der Bestandsimmobilie realisiert werden, sodass ein Neubau als kostengünstige, energieeffiziente und nachhaltige Lösung geplant wurde.
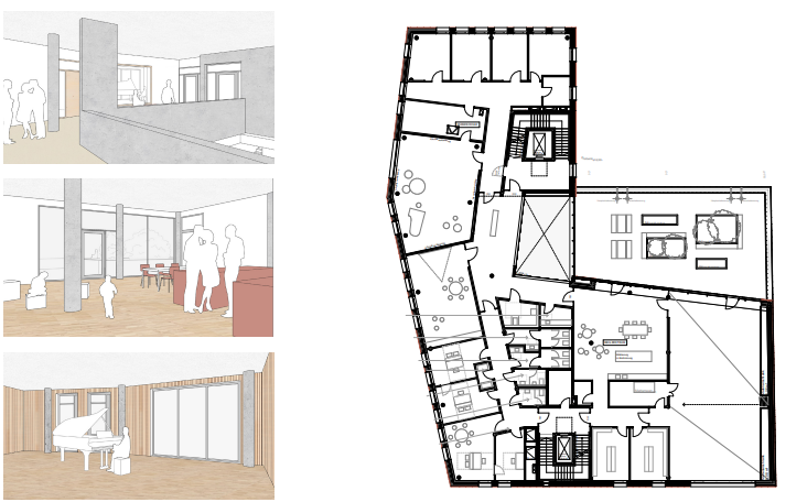
Betritt man das Stadtteilhaus vom Hamannplatz aus über den einladenden gläsernen Westeingang, so gelangt man direkt in das Herzstück des Gebäudes: das zweigeschossige Foyer mit Infotheke, das fließend in die Medienpräsentationsfläche der Stadtteilbücherei übergeht. Neben dem Ausleihen von Medien lädt die neue Gestaltung der Bücherei auch zum längeren Verweilen ein. Ergänzend stehen zudem ein Open-Space-Bereich (offener Lern- und Arbeitsbereich) sowie ein kleiner Veranstaltungsraum zur Verfügung.
Vom Foyer aus erreicht man außerdem das Nordtreppenhaus inklusive Aufzug und die Zweigstelle des Bürgerbüros Nord. Separat über den Nordeingang des Hauses ist zudem das Jugendzentrum des DRK zu erreichen.
Im nördlichen Teil des 1. Obergeschosses befinden sich die Räumlichkeiten der Westfälischen Schule für Musik mit verschiedenen Unterrichtsräumen sowie einem Probenraum.
Südlich daran anschließend befindet sich das Bildungs-, Begegnungs- und Gesundheitszentrum (BBG-Zentrum). Dieser Bereich bietet mit seiner Vielzahl an buchbaren Räumen die Grundlage für ein abwechslungsreiches Angebot verschiedenster Organisationen, Initiativen und Vereine aus dem Stadtteil. Neben Besprechungs- und Beratungsräumen sowie einer kleinen Lehrküche befindet sich hier auch ein multifunktional nutz- und teilbarer Bewegungsraum mit Umkleidemöglichkeiten. Zudem besteht ein Zugang zur Dachterrasse.
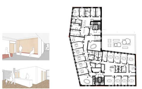
Die Kinderarztpraxis von Dr. Strobelt befindet sich im Norden des 2. Obergeschosses.
Angrenzend dazu befinden sich die Beratungs- und Besprechungsräume der DRK-Migrationshilfe.
Der südliche Teil des Geschosses ist über das Treppenhaus im Süden zugänglich und bietet somit einen diskreten Zugang direkt zu den Beratungsangeboten des dort ansässigen Jobcenters.
Die Streckmetall-Fassade des Gebäudes aus recyceltem Aluminium und passt sich durch seine Farbgebung optisch an die Gebäude im näheren Umfeld an.
Bodentiefe Fenster sorgen für viel Tageslicht im Inneren des Gebäudes und gestatten großzügige Blickbeziehungen zwischen Gebäude und Platz. Durch vorgelagerte Faltschiebeläden können die Fenster bei Bedarf z.B. in Beratungskontexten verschlossen werden.
Prägend für das Gebäude ist zudem die Verbindung zu dem zukünftig neu gestalteten Hamannplatz. Die großflächige Verglasung des Erdgeschossbereiches im Westen und Süden bietet eine unmittelbare Sichtbeziehung zwischen dem Hamannplatz und dem Stadtteilhaus, gleichzeitig entsteht durch die sichtbare Fortführung der Gestaltungselemente des Platzes in das Gebäude hinein eine Art überdachter Übergangsraum, der neugierig macht und zum Erkunden einlädt.
© bbp : architekten

